今回ご紹介するのは、横浜市南区白妙町に位置する「阪東橋KNOTS(バンドウバシノッツ)403号室」です。横浜市営地下鉄ブルーライン「阪東橋」駅から徒歩3分という、非常に利便性の高い立地が最大の魅力です。通勤や通学はもちろん、横浜・関内方面へのアクセスも良好で、忙しい毎日を送る方にとって移動のストレスを軽減してくれます。さらに京急本線「黄金町」駅へも徒歩8分、JR根岸線「関内」駅へも徒歩圏内と、複数路線が利用できる点は大きな強みです。周辺環境も充実しており、スーパーやコンビニ、ドラッグストアが点在しているため、日常の買い物に困ることはありません。飲食店も多く、外食派の方にも嬉しいエリアです。一方で、物件周辺は落ち着いた住宅街のため、夜は静かに過ごせる住環境が整っています。都市の利便性と住みやすさを兼ね備えたバランスの良い立地と言えます。2019年築のRC造マンションで、外観はタイル張りのスタイリッシュなデザイン。オートロックや防犯カメラ、モニター付きインターホンなどセキュリティ面も充実しており、一人暮らしの方や女性の方にも安心です。
「阪東橋KNOTS」について

「阪東橋KNOTS」の物件概要
| 所在地 | 神奈川県横浜市南区白妙町3丁目34-10 |
|---|---|
| 最寄駅 | 横浜市営地下鉄ブルーライン/阪東橋駅 徒歩3分 京急本線/黄金町駅 徒歩8分 |
| 築年数 | 2019年8月 |
| 間取り | 1K |
| 構造 | 鉄筋コンクリート造 |
「阪東橋KNOTS」の室内詳細
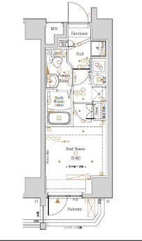
間取り

水道(公営) / ガス(都市) / 排水(下水) / バス専用共同(専用) / トイレ専用共同(専用) / バス・トイレ別 / シャワー / コンロ種別(ガス) / コンロ口数(二口) / システムキッチン / エアコン / 室内洗濯機置き場 / オートロック / エレベータ / バルコニー / フローリング / 宅配ボックス / internet対応(その他インターネット) / TVドアホン / 温水洗浄便座 / 浴室乾燥機 / 独立洗面台 / インターネット利用料無料 / カード決済(初期費用) / クローゼット / シューズボックス / ペット相談 / 保証人不要 / 分譲賃貸
※設備をクリック頂くと設備で条件を絞ることが可能です
1K/洋室

約20.80㎡の1Kタイプながら、居室空間は無駄のない設計で、実際の広さ以上にゆとりを感じられます。フローリング仕様の洋室は明るく清潔感があり、南東向きの採光によって日中は自然光がしっかりと差し込みます。ベッドやデスク、収納家具を配置しても圧迫感が出にくく、在宅ワークにも対応しやすいレイアウトです。エアコン完備のため、季節を問わず快適な室温を保てる点も魅力です。
キッチン

2口ガスコンロ付きのシステムキッチンは、自炊派の方にとって非常に使い勝手の良い仕様です。調理スペースもしっかり確保されており、同時調理が可能なため、毎日の料理がスムーズに進みます。収納スペースも豊富で、調理器具や食器類をすっきりと整理できます。都市ガス仕様のため、ランニングコストを抑えられる点も嬉しいポイントです。
バスルーム

バス・トイレ別設計のバスルームは、ゆったりとした造りで一日の疲れをしっかり癒せます。浴室乾燥機が備え付けられており、雨の日や花粉の季節でも洗濯物を安心して乾かせます。カビ対策にも効果的で、清潔な状態を保ちやすい点も魅力です。忙しい方でも快適なバスタイムを実現できます。
「阪東橋KNOTS」のおすすめポイント
お部屋探しでお困りの方へ
いい部屋ネット桜木町店は桜木町駅から徒歩1分の駅前に店舗を構え、横浜周辺の賃貸マンション・賃貸アパート、売買物件など不動産全般のご紹介をおこなっております。
横浜・周辺へお引越しを検討されている単身の方やカップル、新婚さん、ファミリーなど様々なニーズに合わせて常にお客様目線での接客を心がけ、お客様に最適なお部屋をご紹介いたします。
「賃貸・売買で契約の事がわからない」「遠方で来店ができない」「初期費用を抑えたい」等のお悩みはお気軽にご相談ください。

