今回ご紹介するのは、横浜市鶴見区下野谷町に位置する「オーキッドレジデンス鶴見」です。2018年12月築のRC造7階建て、安心感のあるしっかりとした構造の賃貸マンションで、単身者に人気の高い1Kタイプのお部屋となっています。専有面積は22.33㎡と、一人暮らしにはちょうど良い広さを確保しており、居住性と機能性のバランスが取れた物件です。交通アクセスは、京急本線「京急鶴見」駅まで徒歩13分、さらにJR鶴見線「鶴見小野」駅へは徒歩6分と、2路線利用が可能です。通勤や通学はもちろん、横浜駅や品川方面へのアクセスも良好で、都心へ出やすい立地が魅力です。駅周辺にはスーパーやコンビニ、飲食店が点在しており、日々の生活に不便を感じることはないです。周辺環境は比較的落ち着いた住宅エリアで、騒がしさが少なく、初めての一人暮らしでも安心して暮らせる住環境です。オートロックや防犯カメラ、モニター付きインターホンなど、防犯設備も充実しており、女性の方にもおすすめできるポイントです。
「オーキッドレジデンス鶴見」について

「オーキッドレジデンス鶴見」の物件概要
| 所在地 | 神奈川県横浜市鶴見区下野谷町1丁目22-1 |
|---|---|
| 最寄駅 | 京急本線/京急鶴見駅 徒歩13分 JR京浜東北・根岸線/鶴見駅 徒歩17分 |
| 築年数 | 2018年12月 |
| 間取り | 1K |
| 構造 | 鉄筋コンクリート造 |
「オーキッドレジデンス鶴見」の室内詳細
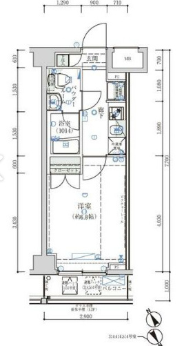
間取り

水道(公営) / ガス(都市) / 排水(下水) / バス専用共同(専用) / トイレ専用共同(専用) / バス・トイレ別 / シャワー / コンロ種別(ガス) / コンロ口数(二口) / システムキッチン / エアコン / 室内洗濯機置き場 / BSアンテナ / オートロック / エレベータ / バルコニー / フローリング / 宅配ボックス / internet対応(その他インターネット) / TVドアホン / 温水洗浄便座 / 浴室乾燥機 / 独立洗面台 / 防犯カメラ / インターネット利用料無料 / カード決済(初期費用) / クローゼット / シューズボックス
※設備をクリック頂くと設備で条件を絞ることが可能です
1K/洋室

洋室は全居室フローリング仕様となっており、清潔感と明るさを感じられる空間です。22.33㎡の1Kタイプながら、家具の配置がしやすい形状で、ベッドやデスク、収納家具を置いても圧迫感を感じにくい点が魅力です。エアコンも完備されているため、夏は涼しく冬は暖かく、季節を問わず快適に過ごせます。フローリングは掃除がしやすく、忙しい社会人の方にも嬉しい仕様です。シンプルな内装はインテリアの自由度が高く、自分好みのお部屋作りを楽しめる点も大きなポイントです。
システムキッチン

キッチンは2口ガスコンロ付きのシステムキッチンを採用しています。自炊派の方には特に嬉しい仕様で、同時調理が可能なため、料理の効率が格段にアップします。作業スペースもしっかり確保されており、食材の下ごしらえや盛り付けもスムーズです。収納スペースも充実しているため、調理器具や食器類をすっきりと整理できます。都市ガス対応で光熱費を抑えやすく、毎日の生活コストを意識する方にもおすすめです。
バスルーム

バスルームはバス・トイレ別で、ゆったりとした入浴時間を楽しめます。浴室乾燥機が設置されているため、雨の日や花粉の季節でも洗濯物を安心して乾かせます。また、湿気対策にも効果的で、カビの発生を抑えやすい点も魅力です。一日の疲れをしっかり癒せる快適なバス空間は、忙しい毎日を送る方にとって欠かせない設備と言えます。
独立洗面台

洗面所には独立洗面台を設置しています。朝の身支度や夜のスキンケアなど、プライベートな時間を快適に過ごせる仕様です。洗面ボウル周りには収納もあり、洗面用品やタオルを整理しやすく、生活感を抑えた空間を保てます。室内洗濯機置場も近く、洗濯から身支度までの動線がスムーズなのも嬉しいポイントです。
トイレ

トイレには温水洗浄便座を完備しています。清潔感があり、寒い季節でも快適に使用できる点が魅力です。毎日使う設備だからこそ、こうした快適仕様は生活満足度を大きく左右します。来客時にも安心して使っていただける、ワンランク上の設備です。
収納

クローゼットは十分な収納力を備えており、衣類やバッグ、季節用品までしっかり収納できます。収納スペースが確保されていることで、居室を広く使えるのも大きなメリットです。整理整頓がしやすく、すっきりとした暮らしを実現できます。
「オーキッドレジデンス鶴見」のおすすめポイント
お部屋探しでお困りの方へ
いい部屋ネット桜木町店は桜木町駅から徒歩1分の駅前に店舗を構え、横浜周辺の賃貸マンション・賃貸アパート、売買物件など不動産全般のご紹介をおこなっております。
横浜・周辺へお引越しを検討されている単身の方やカップル、新婚さん、ファミリーなど様々なニーズに合わせて常にお客様目線での接客を心がけ、お客様に最適なお部屋をご紹介いたします。
「賃貸・売買で契約の事がわからない」「遠方で来店ができない」「初期費用を抑えたい」等のお悩みはお気軽にご相談ください。

