LEXE横濱関内は、京急本線「日ノ出町」駅より徒歩5分、さらに横浜市ブルーライン「伊勢佐木長者町」駅徒歩7分、JR京浜東北・根岸線「関内」駅徒歩9分と、3路線利用可能な好立地に位置しています。横浜中心部へのアクセスはもちろん、都内方面への通勤・通学にも便利な交通環境です。駅近でありながら落ち着いた住環境を兼ね備えている点も大きな魅力です。周辺にはコンビニやスーパー、飲食店が充実しており、日常のお買い物や外食にも困らないです。関内エリアならではの利便性と都市機能を身近に感じながら、快適なシングルライフを実現できます。休日にはみなとみらいエリアへ足を延ばすこともでき、横浜らしい街並みを楽しめるロケーションです。2025年築のRC造11階建てマンションで、分譲タイプならではのしっかりとした建物品質も安心材料です。オートロックや防犯カメラ、モニター付インターホンなど防犯面も充実しており、初めての一人暮らしにもおすすめです。
「LEXE横濱関内」について

「LEXE横濱関内」の物件概要
| 所在地 | 神奈川県横浜市中区福富町西通53-3 |
|---|---|
| 最寄駅 | 京急本線/日ノ出町駅 徒歩5分 横浜市営地下鉄ブルーライン/伊勢佐木長者町駅 徒歩7分 |
| 築年数 | 2025年7月 |
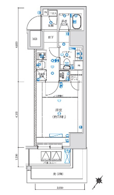
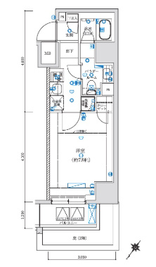
| 間取り | 1K |
| 構造 | 鉄骨鉄筋コンクリート |
「LEXE横濱関内」の室内詳細
間取り

水道(公営) / ガス(都市) / 排水(下水) / バス専用共同(専用) / トイレ専用共同(専用) / バス・トイレ別 / コンロ種別(ガス) / コンロ口数(二口) / システムキッチン / エアコン / 室内洗濯機置き場 / CATV / CSアンテナ / BSアンテナ / オートロック / エレベータ / バルコニー / フローリング / 宅配ボックス / internet対応(光ファイバー) / TVドアホン / 温水洗浄便座 / 浴室乾燥機 / 独立洗面台 / 防犯カメラ / クローゼット / シューズボックス / 楽器相談不可 / 事務所不可 / ペット相談 / 保証人不要 / 分譲賃貸 / 敷地内ゴミ置き場
※設備をクリック頂くと設備で条件を絞ることが可能です
1K/洋室

洋室は約7.8帖の広さを確保しており、ベッドやデスク、テレビボードを配置してもゆとりのあるレイアウトが可能です。フローリング仕様のため、お掃除がしやすく清潔感を保ちやすい空間です。北西向きのバルコニーからは安定した採光が得られ、落ち着いた室内環境を演出します。エアコンも標準装備されているため、入居後すぐに快適な室温で生活をスタートできます。シンプルな間取りだからこそ家具の配置がしやすく、自分らしいインテリアコーディネートを楽しめます。テレワークスペースを設けたい方にもおすすめできる、機能性と快適性を兼ね備えた洋室です。
バスルーム

バス・トイレ別設計で、ゆったりと入浴できるバスルームです。浴室乾燥機が設置されているため、雨の日や花粉の季節でも室内干しが可能です。忙しい方でも洗濯のタイミングを気にせず生活できます。清潔感のあるデザインで、毎日の疲れをしっかり癒してくれる空間です。換気機能も備わっているため、カビ対策にも配慮されています。快適性と機能性を両立したバスルームは、ワンランク上の一人暮らしを実現します。
独立洗面台

独立洗面台を完備している点も本物件の魅力です。朝の身支度や帰宅後の手洗いなど、スムーズに行えます。洗面スペースが独立していることで、生活動線が整い、快適な毎日をサポートします。収納スペースも確保されているため、洗面用品やスキンケア用品を整理しやすい設計です。ホテルライクな使い勝手で、来客時にも好印象を与えます。単身向け物件では希少な独立洗面台付きという点は、ぜひ注目していただきたいポイントです。
トイレ

トイレには温水洗浄便座を設置しています。年間を通して快適に使用でき、清潔志向の方にも安心です。操作も簡単で、日々の生活をワンランク向上させる設備です。バス・トイレ別のため、衛生面にも配慮された設計です。来客時にも使いやすく、分譲タイプならではの充実した仕様が感じられます。細やかな設備が整っていることで、日常の満足度が高まります。
収納

洋室にはクローゼットを完備しており、衣類やバッグをしっかり収納できます。収納スペースが確保されていることで、室内を広く使うことが可能です。シューズボックスも設置されているため、玄関周りもすっきり保てます。収納が充実していることで、整理整頓がしやすく、常に快適な住空間を維持できます。コンパクトな1Kだからこそ、収納力の高さは重要なポイントです。
「LEXE横濱関内」のおすすめポイント
お部屋探しでお困りの方へ
いい部屋ネット桜木町店は桜木町駅から徒歩1分の駅前に店舗を構え、横浜周辺の賃貸マンション・賃貸アパート、売買物件など不動産全般のご紹介をおこなっております。
横浜・周辺へお引越しを検討されている単身の方やカップル、新婚さん、ファミリーなど様々なニーズに合わせて常にお客様目線での接客を心がけ、お客様に最適なお部屋をご紹介いたします。
「賃貸・売買で契約の事がわからない」「遠方で来店ができない」「初期費用を抑えたい」等のお悩みはお気軽にご相談ください。

