京急本線「日ノ出町」駅から徒歩5分という優れた交通アクセスを誇る「AZEST関内 804号室」は、都心への通勤・通学はもちろん、横浜エリアを生活圏にしたい方におすすめの築浅賃貸マンションです。さらに、横浜市営地下鉄ブルーライン「伊勢佐木長者町」駅、京急本線「黄金町」駅も徒歩8分圏内で利用でき、複数路線を使い分けられる利便性の高さが魅力です。物件周辺には、スーパーやコンビニ、ドラッグストア、飲食店が点在しており、日々の買い物や外食にも困らないです。伊勢佐木町エリアも近く、商店街の活気を感じながら生活できる一方、物件周辺は落ち着いた住宅街で、オンとオフのバランスが取れた住環境が整っています。2023年2月築のRC造マンションで、オートロックや宅配ボックス、エレベーターなど、現代のライフスタイルに欠かない共用設備も充実しています。1K・23.10㎡の間取りは、一人暮らしにちょうど良い広さで、初めての一人暮らしや社会人の方にも安心しておすすめできます。
「AZEST関内」について

「AZEST関内」の物件概要
| 所在地 | 神奈川県横浜市中区末吉町1丁目12-1 |
|---|---|
| 最寄駅 | 京急本線/日ノ出町駅 徒歩5分 JR京浜東北・根岸線/桜木町駅 徒歩15分 |
| 築年数 | 2023年2月 |
| 間取り | 1K |
| 構造 | 鉄骨鉄筋コンクリート |
「AZEST関内」の室内詳細
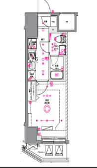
間取り

水道(公営) / ガス(都市) / 排水(下水) / バス専用共同(専用) / トイレ専用共同(専用) / バス・トイレ別 / シャワー / コンロ種別(ガス) / コンロ口数(二口) / システムキッチン / エアコン / 室内洗濯機置き場 / オートロック / エレベータ / バルコニー / フローリング / 宅配ボックス / internet対応(その他インターネット) / TVドアホン / 温水洗浄便座 / 浴室乾燥機 / 独立洗面台 / 防犯カメラ / カード決済(初期費用) / クローゼット / シューズボックス / 保証人不要 / 分譲賃貸
※設備をクリック頂くと設備で条件を絞ることが可能です
1K/洋室

フローリング仕様の洋室は、清潔感と温かみを兼ね備えた空間です。23.10㎡の1Kタイプながら、家具配置がしやすい整形設計となっており、ベッドやデスク、収納家具を置いても圧迫感を感じにくい点が魅力です。エアコン完備のため、季節を問わず快適な室温を保つことができ、在宅ワークやリラックスタイムも快適に過ごせます。バルコニーに面しているため採光も良く、明るい室内は一日の始まりを気持ちよく迎えられます。
バスルーム

バス・トイレ別設計のバスルームは、ゆったりと一日の疲れを癒せる空間です。清掃性にも優れており、常に清潔な状態を保ちやすいのが特徴です。築浅ならではの新しさも感じられ、快適なバスタイムをお楽しみいただけます。
独立洗面台

独立洗面台が備わっている点は、一人暮らしの快適さを大きく左右する重要設備です。忙しい朝でもスムーズに身だしなみを整えることができ、生活の質が格段に向上します。鏡の周りには適度な収納スペースがあり、歯ブラシやスキンケア用品、ヘアケアアイテムなどを整理しやすく、洗面周りを常に清潔に保つことができます。また、洗面ボウルは広めで、水はねもしにくい設計。ヘアセットやメイクをする方にとっても使い心地の良い仕様です。照明も明るく、顔全体がしっかり見えるため、毎日の身支度がより快適になります。
トイレ

温水洗浄便座が標準装備されている点は、衛生面と快適性の両方を重視したい方にとって大きな魅力です。一年を通して清潔感を維持しやすく、特に冬場の使用感に優れており、一度使うと手放せない設備と言われています。便座の温度調整が可能なため、寒い季節でも快適なトイレ時間を過ごせます。また、洗浄機能によって衛生的な環境が保たれ、日々の生活をより快適にしてくれます。
収納

クローゼットは収納力があり、洋服や日用品をしっかり整理できるのが特徴です。一人暮らしの部屋では「収納の使いやすさ」が快適な生活の鍵を握りますが、こちらのクローゼットは奥行きも高さもしっかり確保されているため、季節物の衣替えもスムーズに行えます。ハンガーパイプも設置されており、コートやスーツなどシワを付けたくない衣類もきれいに保管可能です。下部には収納ボックスやバッグなども置けるスペースがあり、工夫次第で収納量をさらに増やすことができます。
「AZEST関内」のおすすめポイント
お部屋探しでお困りの方へ
いい部屋ネット桜木町店は桜木町駅から徒歩1分の駅前に店舗を構え、横浜周辺の賃貸マンション・賃貸アパート、売買物件など不動産全般のご紹介をおこなっております。
横浜・周辺へお引越しを検討されている単身の方やカップル、新婚さん、ファミリーなど様々なニーズに合わせて常にお客様目線での接客を心がけ、お客様に最適なお部屋をご紹介いたします。
「賃貸・売買で契約の事がわからない」「遠方で来店ができない」「初期費用を抑えたい」等のお悩みはお気軽にご相談ください。

