横浜市ブルーライン「伊勢佐木長者町」駅から徒歩わずか1分という好立地にある【ベスト伊勢佐木長者町 1101】です。利便性と快適な住環境を両立したワンルームマンションです。周辺にはスーパーやコンビニ、飲食店が立ち並び、生活に必要な施設が徒歩圏内に揃っています。さらに「関内」駅へも徒歩5分とアクセス抜群です。横浜中心部や都心方面への通勤・通学にも便利です。建物はSRC造12階建の堅牢な分譲タイプです。11階部分に位置するお部屋は南西向きの角部屋で、明るい日差しが心地よく差し込みます。周囲の建物とも距離があり、開放感を感じながら暮らせるのも魅力です。築年数こそありますが、設備はしっかり整っており、浴室乾燥機やシステムキッチン、独立洗面台、温水洗浄便座など、現代のライフスタイルに合った快適な仕様です。オートロックやモニター付きインターホン完備で、女性の一人暮らしにも安心です。
「ベスト伊勢佐木長者町」について

「ベスト伊勢佐木長者町」の物件概要
| 所在地 | 神奈川県横浜市中区長者町4丁目10-9 |
|---|---|
| 最寄駅 | 横浜市営地下鉄ブルーライン/伊勢佐木長者町駅 徒歩1分 JR京浜東北・根岸線/関内駅 徒歩5分 |
| 築年数 | 1999年11月 |
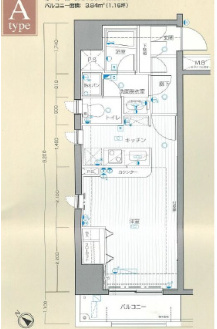
| 間取り | 1R |
| 構造 | 鉄骨鉄筋コンクリート |
「ベスト伊勢佐木長者町」の室内詳細
間取り

水道(公営) / ガス(都市) / 排水(下水) / バス専用共同(専用) / トイレ専用共同(専用) / バス・トイレ別 / シャワー / コンロ種別(ガス) / コンロ口数(二口) / システムキッチン / エアコン / 室内洗濯機置き場 / オートロック / エレベータ / バルコニー / フローリング / 宅配ボックス / タイル貼り / internet対応(光ファイバー) / 角部屋 / TVドアホン / 温水洗浄便座 / カウンターキッチン / 浴室乾燥機 / 独立洗面台 / カード決済(初期費用) / クローゼット / シューズボックス / 二人入居可 / 保証人不要 / 分譲賃貸 / 敷地内ゴミ置き場
※設備をクリック頂くと設備で条件を絞ることが可能です
1R/洋室

約9帖の広々とした洋室は、単身者には十分な広さ。南西向きの大きな窓からは明るい光が差し込み、日中は照明いらずで過ごせるほどです。角部屋ならではの二面採光で、風通しの良さも魅力です。フローリング仕上げで清潔感があり、家具のレイアウトも自由自在です。ワークスペースやくつろぎスペースを分けても余裕のある間取りで、自宅時間を快適に過ごせます。エアコン完備のため、一年を通して快適な室温を保てます。
バスルーム

バス・トイレ別の設計で、プライバシーを確保しながら快適に入浴が楽しめます。浴室乾燥機付きで、雨の日でも洗濯物をカラッと乾かせるのが便利です。追い焚き機能こそありませんが、シャワーの水圧や清潔感は申し分なしです。温かみのある内装が、1日の疲れを癒やす空間を演出しています。掃除もしやすく、毎日清潔なバスタイムを保てます。
独立洗面台

忙しい朝に便利な独立洗面台を完備しております。鏡の裏には収納スペースがあり、歯ブラシや化粧品などの小物もスッキリ整理できます。シンプルなデザインでお手入れも簡単です。明るい照明が顔全体をしっかり照らし、身支度がしやすい仕様です。洗面台の下にも収納があり、タオルや洗剤をまとめて置けるため、空間を無駄なく使えます。
トイレ

トイレには温水洗浄便座を完備しております。季節を問わず快適に使用でき、衛生面でも安心です。デザインはシンプルながら清潔感があり、使いやすさを重視した仕様です。リモコン操作で水圧や温度調整も可能です。バスルームとは分離しているため、来客時にも使いやすく、快適なプライベート空間を保てます。
収納

収納力のあるクローゼットがあり、衣類や荷物をスッキリ整理できます。奥行きも十分で、季節物の衣替えもスムーズです。ハンガーパイプ付きで、シワをつけたくない服もきれいに保管可能です。上部の棚にはバッグや帽子などの小物を収納でき、空間を有効活用できます。シューズボックスも完備しているため、玄関周りも整然とした印象に。
「ベスト伊勢佐木長者町」のおすすめポイント
お部屋探しでお困りの方へ
いい部屋ネット桜木町店は桜木町駅から徒歩1分の駅前に店舗を構え、横浜周辺の賃貸マンション・賃貸アパート、売買物件など不動産全般のご紹介をおこなっております。
横浜・周辺へお引越しを検討されている単身の方やカップル、新婚さん、ファミリーなど様々なニーズに合わせて常にお客様目線での接客を心がけ、お客様に最適なお部屋をご紹介いたします。
「賃貸・売買で契約の事がわからない」「遠方で来店ができない」「初期費用を抑えたい」等のお悩みはお気軽にご相談ください。

