横浜市中区羽衣町に位置する「ザ・パークハビオ横浜関内 604号室」は、2017年築のRC造マンションで、安心感と快適さを兼ね備えた人気物件です。間取りは2LDK(50.45㎡)と使いやすく、南東向きの角部屋のため、日当たりと風通しに恵まれています。交通アクセスは抜群で、JR京浜東北・根岸線「関内」駅から徒歩3分、さらにブルーライン「関内」駅も同じく徒歩3分です。横浜中心地や都心方面へもスムーズに移動できる好立地です。通勤や通学はもちろん、休日のショッピングやレジャーも気軽に楽しめます。周辺環境も充実しており、スーパーやコンビニ、飲食店が徒歩圏内に揃っています。横浜スタジアムや大通り公園も近く、スポーツ観戦や散歩を日常の中で楽しめるのも魅力の一つです。また、ペット飼育や楽器相談も可能で、ライフスタイルに合わせた暮らしを叶えられます。
「ザ・パークハビオ横浜関内」について

「ザ・パークハビオ横浜関内」の物件概要
| 所在地 | 神奈川県横浜市中区羽衣町2丁目8-1 |
|---|---|
| 最寄駅 | JR京浜東北・根岸線/関内駅 徒歩3分 横浜市営地下鉄ブルーライン/伊勢佐木長者町駅 徒歩6分 |
| 築年数 | 2017年10月 |
| 間取り | 2LDK |
| 構造 | 鉄筋コンクリート |
「ザ・パークハビオ横浜関内」の室内詳細
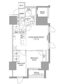
間取り

水道(公営) / ガス(都市) / 排水(下水) / バス専用共同(専用) / トイレ専用共同(専用) / バス・トイレ別 / シャワー / コンロ種別(ガス) / コンロ口数(三口) / システムキッチン / 追い焚き / エアコン / W.INクローゼット / 室内洗濯機置き場 / オートロック / エレベータ / バルコニー / フローリング / 宅配ボックス / タイル貼り / internet対応(光ファイバー) / 角部屋 / TVドアホン / 温水洗浄便座 / カウンターキッチン / 浴室乾燥機 / 独立洗面台 / 防犯カメラ / カード決済(初期費用) / クローゼット / シューズボックス / 照明器具付き / 楽器相談可 / ペット相談 / 保証人不要
※設備をクリック頂くと設備で条件を絞ることが可能です
2LDK/洋室

本物件には5帖と4.8帖の洋室があり、ライフスタイルに合わせた多様な使い方が可能です。フローリング仕様で明るく清潔感のある室内は、家具の配置もしやすくインテリアを楽しめます。5帖の洋室は寝室としてちょうど良い広さで、ベッドや収納家具を置いてもゆとりを感じられます。4.8帖の洋室はワークスペースや子ども部屋としても最適です。角部屋ならではの採光性があり、日中は自然光がたっぷりと差し込みます。エアコンも設置されているため、年間を通して快適に過ごせる点も魅力です。また、遮音性に優れたRC造のため、プライバシー性も高く、落ち着いた時間を確保できます。洋室のバランスが良いため、在宅勤務とプライベートをしっかり分けたい方や、将来の生活スタイルの変化にも対応できる間取りとなっています。
バスルーム

バスルームは追い焚き機能と浴室乾燥機を完備しており、快適なバスタイムを提供します。仕事や外出で疲れた日には、ゆったりとお湯に浸かってリラックスでき、追い焚き機能でいつでも温かいお風呂を楽しめます。浴室乾燥機は、雨の日や花粉の時期に室内干しができるので非常に便利です。カビ対策にも効果的で、清潔感のある空間を保てます。シンプルで落ち着いたデザインの浴室は、一日の疲れを癒す空間にぴったりです。さらに独立したバス・トイレ設計のため、来客時も安心して利用できます。日常の中に「快適な癒し」を取り入れたい方におすすめの設備です。
独立洗面台

独立洗面台は収納力と使い勝手を兼ね備えています。朝の身支度から夜のスキンケアまで快適に利用できる広さと設計で、家族が同時に使う時間帯でも効率的に活用できます。大きめの鏡と収納スペースがあり、化粧品や日用品をすっきりと整理可能です。洗面台下には収納スペースもあり、洗剤やタオルなどを見せずに収納できるため、生活感を抑えた空間を演出できます。照明も明るく、清潔感のあるデザインで、毎日の習慣がより快適になります。独立した洗面スペースがあることで、浴室やトイレとの動線もスムーズになり、暮らしやすさを高めています。
トイレ

トイレには温水洗浄便座を完備しており、快適で清潔な暮らしを支えます。座面の暖房機能により冬でも快適に使用でき、温水洗浄機能は衛生面でも安心です。家族全員が安心して使える設備で、生活の質を高めてくれます。また、節水機能付きのタイプのため、環境にも家計にも優しい仕様です。独立したトイレ空間はプライバシー性が高く、来客時にも安心です。清掃しやすい設計となっており、日々のメンテナンスも楽に行えます。こうした快適性と清潔感を兼ね備えたトイレは、長く住み続ける上で大きな魅力となります。
収納

収納面ではウォークインクローゼットを備えており、衣類や荷物をしっかり収納できます。大容量の収納スペースは、季節ごとの衣替えやスーツケース、趣味の道具なども余裕を持って収められます。洋室との動線もスムーズで、毎日の生活が快適です。収納力のある住まいは部屋を広く使えるため、インテリアの自由度も広がります。整理整頓がしやすく、生活感を抑えたおしゃれな空間を維持できるのもポイントです。家族暮らしはもちろん、荷物が多い一人暮らしの方にも最適で、収納に困らない暮らしを実現します。
「ザ・パークハビオ横浜関内」のおすすめポイント
お部屋探しでお困りの方へ
いい部屋ネット桜木町店は桜木町駅から徒歩1分の駅前に店舗を構え、横浜周辺の賃貸マンション・賃貸アパート、売買物件など不動産全般のご紹介をおこなっております。
横浜・周辺へお引越しを検討されている単身の方やカップル、新婚さん、ファミリーなど様々なニーズに合わせて常にお客様目線での接客を心がけ、お客様に最適なお部屋をご紹介いたします。
「賃貸・売買で契約の事がわからない」「遠方で来店ができない」「初期費用を抑えたい」等のお悩みはお気軽にご相談ください。

