f

横浜エリアの賃貸物件情報は、いい部屋ネット桜木町店にお任せ下さい!

ファミリー向け戸建物件!駐車場付き

定期借家【宮前区有馬2丁目戸建】3LDK+S

  • 定期借家【宮前区有馬2丁目戸建】3LDK+S
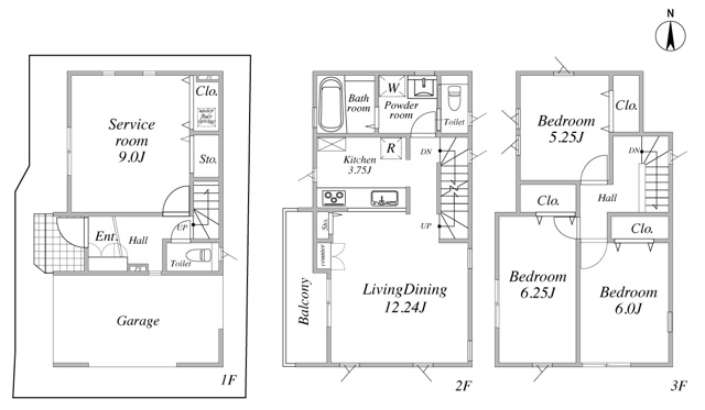
  • 間取り画像

賃料

160,000円共益費:0円

所在地

神奈川県川崎市宮前区有馬2丁目6-15

アクセス

  • 東急田園都市線宮前平駅徒歩10分
  • 東急田園都市線鷺沼駅徒歩14分

物件基本情報

物件構造 物件階層 物件種別 完成年月 現状 入居 取引態様
木造 2階建 戸建 2021年3月 空室 即時 代理

物件設備

  • 敷地内駐車場
  • 室内洗濯機置き場
  • カウンターキッチン
  • 浴室に窓
  • 全居室収納
  • 温水洗浄便座

部屋設備

  • 駐車場付き
  • 西向き
  • システムキッチン
  • 給湯器
  • フローリング
  • 食器洗浄機
  • 床暖房
  • バルコニー
  • TVインターホン
  • オール洋室
  • 追い焚き機能

周辺環境

新世 宮前店 約110m、くら寿司 川崎有馬店 約190m、丸亀製麺川崎馬絹 約230m、ファミリーマート 有馬二丁目店 約200m、川崎市立宮崎小学校 約300m、ライフ東有馬店、 約800m

おすすめポイント
  • 01床暖房
  • 02敷地内駐車場無料
  • 03食器洗浄機

おすすめポイント

定期借家。広々とした4LDKタイプの戸建でファミリーにおすすめです。駐車場も無料で着いてきますのでお車をお持ちの方にお勧めです。築浅の綺麗な戸建で住設備充実しております。周辺もチェーン店やスーパーなどもございますので住環境も充実しています。

宮前駅ってどんなところ?

東京に隣接し、都心のベッドタウンとして発展した川崎市宮前区は、自然が多い起伏のある地形が特徴的な街です。都心への通勤・通学のほか、沿線途中にある人気スポットにもアクセスしやすいのが特徴です。宮前平駅の改札を出てすぐの場所には「東急ストア」、徒歩圏内にも「成城石井」や「いなげや」といったスーパーやコンビニなどが点在。仕事帰りなどの遅い時間にも立ち寄りやすく、日常の買い物で困ることが少ないのも魅力です。宮前平駅周辺は坂道が多く、少し離れると閑静な住宅街が広がっています。治安面で安心感があり、1人暮らしはもちろん、ファミリー世帯の居住が多いエリアです。

宮前区有馬2丁目戸建の物件詳細情報はこちら

よかったらシェアしてね!
  • URLをコピーしました!

この記事を書いた人

いい部屋ネット桜木町店の編集メンバーが不定期で更新します。不動産界隈の最新ニュース・物件更新情報・いい部屋ネット桜木町店からのお知らせやお部屋探しに役立つ情報をわかりやすく紹介します!

LINE

LINEする

来店予約

来店予約する