f

横浜エリアの賃貸物件情報は、いい部屋ネット桜木町店にお任せ下さい!

大人気マンションが一部屋募集開始しました。

分譲賃貸マンション【Log反町sta.】1K

  • 分譲賃貸マンション【Log反町sta.】1K
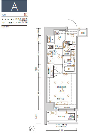
  • 間取り画像

賃料

76,000円共益費:10,000円

所在地

神奈川県横浜市神奈川区反町4丁目30

アクセス

  • 東急東横線反町駅徒歩4分
  • 京浜東北線横浜駅徒歩15分
  • 京浜東北線東神奈川駅徒歩12分

物件基本情報

物件構造 物件階層 物件種別 完成年月 現状 入居 取引態様
鉄筋コンクリート 7階建 マンション 2021年3月 空室 即時 専任媒介

物件設備

  • オートロック
  • モニター付きオートロック
  • インターネット
  • 宅配ボックス
  • 防犯カメラ
  • 都市ガス

部屋設備

  • 分譲マンション
  • 北西向き
  • 独立洗面台
  • システムキッチン
  • フローリング
  • 浴室乾燥機
  • 照明器具
  • バルコニー
  • TVインターホン
  • オール洋室
  • ネット無料

周辺環境

有限会社櫻庵 約152m、トップパルケ 反町店 約294m、まいばすけっと 反町駅北店 約150m、セブンイレブン 約259m、ローソン反町2丁目店 約954m、 クリエイトSD(エス・ディー) 横浜反町店 約334m

おすすめポイント
  • 01ペット飼育可能
  • 02ネット無料
  • 03オートロック

おすすめポイント

弊社募集窓口物件!東急東横線「反町」駅から信号なしの一本道で徒歩4分の好立地に位置し、簡単なお買い物は「まいばすけっと」で、がっつりお買い物は「トップパルケ」と使い分けができるのはとてもうれしいポイントです。また、物件前面道路が緑道となっており眺望もよく車通りも少ない為、駅前にして静かな日常を手に入れることが出来ます。バストイレ別、独立洗面台や2口ガスコンロのシステムキッチンなど快適な水回りが自慢のお部屋です。ペットの飼育もご相談可能です。また、インターネット無料なので費用を抑えられます。

反町駅ってどんなところ?

東急東横線で、横浜の隣駅。なのですが、横浜の若さの押し売りのような雰囲気は既に無く、古くからよろしくやっている街というイメージです。ちょっと前に神奈川駅という、県の名前を冠する小さな駅の話をしましたが、むしろそちらの文化圏だと思います。神奈川駅のあたりは東海道の神奈川宿があり、かつては賑わいの中心でありました。反町はそこから北へちょっと歩いたあたりで、昔は遊郭があったという話もございます。

Log反町sta.物件詳細情報はこちら

よかったらシェアしてね!
  • URLをコピーしました!

この記事を書いた人

いい部屋ネット桜木町店の編集メンバーが不定期で更新します。不動産界隈の最新ニュース・物件更新情報・いい部屋ネット桜木町店からのお知らせやお部屋探しに役立つ情報をわかりやすく紹介します!

LINE

LINEする

来店予約

来店予約する