賃貸マンション【ラルクス】2LDK
賃料
225,000円共益費:30,000円
所在地
神奈川県横浜市鶴見区寺谷2丁目3-23
アクセス
- 京浜東北線鶴見駅徒歩10分
- 京急本線京急鶴見駅徒歩14分
- 京急本線花月総持寺駅徒歩21分
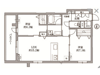
物件基本情報
| 物件構造 | 物件階層 | 物件種別 | 完成年月 | 現状 | 入居 | 取引態様 |
|---|---|---|---|---|---|---|
| 鉄骨造 | 3階建 | マンション | 2024年11月 | 空室 | 即時 | 媒介 |
物件設備
- オートロック
- モニター付きオートロック
- インターネット
- 宅配ボックス
- 防犯カメラ
- 都市ガス
部屋設備
- 浴室乾燥機
- 西向き
- 独立洗面台
- 角部屋
- フローリング
- カウンターキッチン
- 照明器具
- バルコニー
- TVインターホン
- オール洋室
- 3口コンロ
周辺環境
セブン-イレブン 横浜鶴見豊岡町店 約450m、O’munaciello 約260m、ローソン 鶴見豊岡通店 約400m、森山皮膚科 約350m、ポスト薬局 約270m、スーパークリシマ 佃野店 約700m
おすすめポイント
横浜市鶴見区エリアの新居にピッタリ。エントランスと玄関の2つのロックを備えているので防犯対策につながるオートロック機能付きです。収納はクロゼット・シューズボックスなど豊富なので、衣類や履き物の整理がしやすく便利です。共用部には宅配ボックスが付いているため、対面で荷物を受け取る必要がありません。室内設備は洗面所独立・浴室乾燥機など豊富に揃っており、過ごしやすいお部屋になっております。三口コンロが付いています。
鶴見駅ってどんなところ
神奈川県横浜市鶴見区に位置する主要な交通拠点であり、JR東日本の京浜東北線・鶴見線が利用可能です。加えて、京浜急行電鉄の京急鶴見駅とも近接しており、都心や横浜、川崎方面へのアクセスが便利です。駅周辺には商業施設や飲食店が多く、鶴見総合高校や鶴見区役所など地域の重要な施設もあります。また、鶴見線を使うと歴史ある工業地帯や風情ある鶴見川沿いへのアクセスができ、観光や散策スポットとしても人気です。