横浜エリアの賃貸物件情報は、いい部屋ネット桜木町店にお任せ下さい!

戸部駅賃貸で1Kの分譲賃貸マンション

最寄駅から徒歩3分の分譲賃貸マンション【ベルシード横濱ウエストⅡ】1K

  • 最寄駅から徒歩3分の分譲賃貸マンション【ベルシード横濱ウエストⅡ】1K
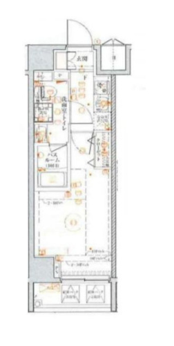
  • 間取り画像

賃料

73,000円共益費:15,000円

所在地

神奈川県横浜市西区中央1丁目28-18

アクセス

  • 京急本線戸部駅徒歩3分
  • JR京浜東北・根岸線横浜駅徒歩15分
  • 相鉄本線平沼橋駅徒歩5分

物件基本情報

物件構造 物件階層 物件種別 完成年月 現状 入居 取引態様
鉄筋コンクリート造 11階建 マンション 2018年5月 居住中 12月中旬予定 媒介

物件設備

  • オートロック
  • モニター付きオートロック
  • インターネット
  • 宅配ボックス
  • 防犯カメラ
  • 都市ガス

部屋設備

  • 分譲タイプ
  • インターネット使用料無料
  • TVモニター付きインターホン
  • システムキッチン
  • 2口ガスコンロ
  • 浴室乾燥機
  • 温水洗浄便座
  • 洗面所独立
  • 24時間換気システム
  • オール洋室
  • クローゼット

周辺環境

松のや 野毛店 約1436m、伊勢山ヒルズ 約1056m、カレーハウスCoCo壱番屋 JR桜木町駅前店 約1705m、モスバーガー 横浜桜木町店 約1651m、食品館あおば・野毛店 約1458m、マルイヤ 約1365m

おすすめポイント
  • 01分譲賃貸マンション
  • 02インターネット使用料無料
  • 03充実のセキュリティ

おすすめポイント

戸部駅徒歩3と駅近。高層階で眺望良好のお部屋のご紹介です。明るい道沿いにございますので、夜でも安心してご帰宅できます。インターネットも無料でご使用いただけます。お部屋探しはGoogleの口コミで高評価を頂いている弊社にぜひお任せください。

戸部の由来

戸部という地名は、かつてこの付近に戸部民部という人が住んでいたことに由来するそうです。駅名もそれにちなんでつけられました。駅から12分ほど歩いたところに掃部山があり、隣接する紅葉ガ丘には県立青少年センターや県立音楽堂・図書館などの文化施設が集まっています。そのセンターの前に神奈川奉行所跡の碑が建っています。神奈川開港に関する仕事を取り扱うために、安政6(1859)年6月4日、ここに奉行所が発足しました。なぜ幕府は開港場に奉行所を置かず、こんなに離れた野毛の切通しの上に設けたのでしょうか。それは、いざというときに開港場に架かる吉田橋を落として、奉行所を砦にしようと考えていたからだといわれています。実際に奉行は毎日、奉行所から開港場まで通っていたといいます。

ベルシード横濱ウエストⅡの物件詳細情報はこちら

よかったらシェアしてね!
  • URLをコピーしました!

この記事を書いた人

いい部屋ネット桜木町店の編集メンバーが不定期で更新します。不動産界隈の最新ニュース・物件更新情報・いい部屋ネット桜木町店からのお知らせやお部屋探しに役立つ情報をわかりやすく紹介します!

LINE

LINEする

来店予約

来店予約する