横浜エリアの賃貸物件情報は、いい部屋ネット桜木町店にお任せ下さい!

反町駅賃貸で1Kのルーフバルコニー付き

ルーフバルコニー付き分譲賃貸マンション【Log反町sta.】1K

  • ルーフバルコニー付き分譲賃貸マンション【Log反町sta.】1K
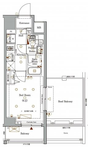
  • 間取り画像

賃料

93,000円共益費:10,000円

所在地

神奈川県横浜市神奈川区反町4-30-8

アクセス

  • 東急東横線反町駅徒歩4分
  • JR京浜東北・根岸線横浜駅徒歩15分
  • JR京浜東北・根岸線東神奈川駅徒歩12分

物件基本情報

物件構造 物件階層 物件種別 完成年月 現状 入居 取引態様
鉄筋コンクリート造 7階建 マンション 2021年3月 居住中 12月下旬 媒介

物件設備

  • オートロック
  • モニター付きインターホン
  • インターネット
  • 宅配ボックス
  • 防犯カメラ
  • 都市ガス

部屋設備

  • デザイナーズ
  • 独立洗面台
  • エアコン
  • しすてっむキッチン
  • 浴室乾燥機
  • 温水洗浄便座
  • シューズボックス
  • ルーフバルコニー
  • TVインターホン
  • オール洋室
  • インターネット使用料無料

周辺環境

まいばすけっと 反町駅北店 約150m、ミニストップ 広台太田店 約229m、ローソン反町2丁目店 約954m、有限会社櫻庵 約152m、クリエイトSD(エス・ディー) 横浜反町店 約334m、トップパルケ 反町店 約294m

おすすめポイント
  • 01ルーフバルコニー
  • 02駅徒歩4分
  • 03充実のセキュリティ

おすすめポイント

弊社募集窓口物件です。バストイレ別、独立洗面台や2口ガスコンロのシステムキッチンなど快適な水回りが自慢のお部屋です。ペットの飼育もご相談可能です。寝室にはクローゼットがあり洋服もたくさん収納できます。そして居室とほぼ同じ広さのルーフバルコニーもございます。

神奈川スケートリンク

神奈川スケートリンクは横浜市神奈川区の反町公園に隣接して所在するスケートリンクです。旧スケートリンクの建物は、もとは土浦海軍航空隊の飛行場格納庫で、1949年3月∼6月に開催された日本貿易博覧会の芸能館として使用する目的で当地に移築されました。その後体育館に改装され、11月に行われた第4回国民体育大会では「反町体育館」として体操競技の会場となりました。この体育館の運営を目的とした財団法人神奈川体育館が設立され、横浜市から体育館を譲り受け、1951年2月に体育館とスケートリンクが開業しました。かつては東日本大震災で練習リンクが使用不可となった羽生結弦も同施設で練習を行っていたそうです。

Log反町sta.の物件詳細情報はこちら

よかったらシェアしてね!
  • URLをコピーしました!

この記事を書いた人

いい部屋ネット桜木町店の編集メンバーが不定期で更新します。不動産界隈の最新ニュース・物件更新情報・いい部屋ネット桜木町店からのお知らせやお部屋探しに役立つ情報をわかりやすく紹介します!

LINE

LINEする

来店予約

来店予約する