横浜エリアの賃貸物件情報は、いい部屋ネット桜木町店にお任せ下さい!

国道駅賃貸 1K 築浅分譲マンション

2駅2路線6分以内【リライア横濱鶴見】1K

  • 2駅2路線6分以内【リライア横濱鶴見】1K
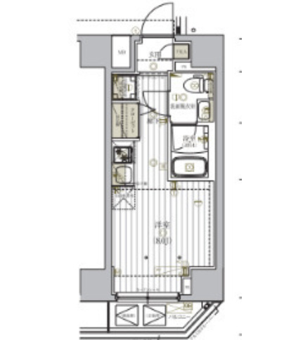
  • 間取り画像

賃料

76,500円共益費:10,000円

所在地

神奈川県横浜市鶴見区鶴見中央5丁目27-7

アクセス

  • JR鶴見線国道駅徒歩3分
  • 京急本線花月総持寺駅徒歩6分
  • JR京浜東北・根岸線鶴見駅徒歩13分

物件基本情報

物件構造 物件階層 物件種別 完成年月 現状 入居 取引態様
鉄筋コンクリート造 11階建 マンション 2023年12月 居住中 10月下旬 媒介

物件設備

  • オートロック
  • モニター付きオートロック
  • インターネット
  • 宅配ボックス
  • エレベーター
  • 都市ガス

部屋設備

  • 築1年未満
  • 東向き
  • システムキッチン
  • 二口ガスコンロ
  • 浴室換気乾燥暖房機
  • 洗浄機能付暖房便座
  • クローゼット
  • シューズボックス
  • エアコン
  • モニター付きインターホン
  • フローリングフロア

周辺環境

ローソン・スリーエフ 鶴見駅前店 約870m、 テーラームラカミ 約1078m、クラモト歯科 約908m、鶴見市場郵便局 約2046m、まいばすけっと駅南店 約2082m、ぐるめ寿司 約2027m

おすすめポイント
  • 012路線2駅利用可能
  • 02ペット飼育可能
  • 03築1年未満

おすすめポイント

2023年築、設備充実の分譲賃貸マンションです。浴室乾燥機や温水洗浄便座、エアコンなど充実した設備がございます。宅配BOXやオートロックと共用設備も充実しております。

花月総持寺駅

京浜急行電鉄の花月総持寺駅という駅名は、駅から徒歩7分の場所にある曹洞宗大本山の「總持寺」に由来しています。2020年3月14日に、京浜急行電鉄が創立120周年事業の一環として、沿線の小中学生を対象に実施した「わがまち駅名募集」の結果、花月園前駅から駅名を改称しました。

リライア横濱鶴見の物件詳細情報はこちら

よかったらシェアしてね!
  • URLをコピーしました!

この記事を書いた人

いい部屋ネット桜木町店の編集メンバーが不定期で更新します。不動産界隈の最新ニュース・物件更新情報・いい部屋ネット桜木町店からのお知らせやお部屋探しに役立つ情報をわかりやすく紹介します!

LINE

LINEする

来店予約

来店予約する